Lakástípusok


[Első] [Előző] [Vissza a Lakástípusokhoz] [Következő] [Utolsó]


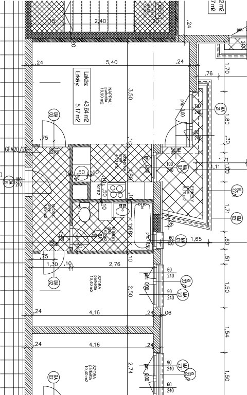
Lakás Adatai
Meretezett tervrajz

Lakáskód:
06-126

Helyiség: Terület

Nappali+konyha: 26,68 m2
Előtér: 4,25 m2
Fürdő: 4,71 m2
WC: 1.40 m2

LAKÁS: 43,46 m2
ERKÉLY: 34,84 m2

(A a rajzokat a képekre kattintva
nagyobb méretben is megtekintheti!)

[Kattintson rá a nagyításhoz!]
Szintrajz Grafikus Tervrajz
[Kattintson rá a nagyításhoz!] [Kattintson rá a nagyításhoz!]


[Első] [Előző] [Vissza a Lakástípusokhoz] [Következő] [Utolsó]