Lakástípusok


[Első] [Előző] [Vissza a Lakástípusokhoz] [Következő] [Utolsó]


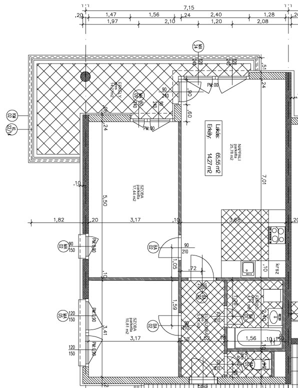
Lakás Adatai Meretezett tervrajz

Lakáskód:
04-76, 05-101

Helyiség: Terület

Nappali+konyha: 25,78 m2
Előtér: 5,41 m2
Szoba: 17,44 m2
Szoba: 10,81 m2
Fürdő: 4,71 m2
WC: 1,40 m2

LAKÁS: 65,55 m2
ERKÉLY: 14,27 m2

(A a rajzokat a képekre kattintva
nagyobb méretben is megtekintheti!)

[Kattintson rá a nagyításhoz!]
Szintrajz Grafikus Tervrajz
[Kattintson rá a nagyításhoz!] [Kattintson rá a nagyításhoz!]


[Első] [Előző] [Vissza a Lakástípusokhoz] [Következő] [Utolsó]