Lakástípusok


[Első] [Előző] [Vissza a Lakástípusokhoz] [Következő] [Utolsó]


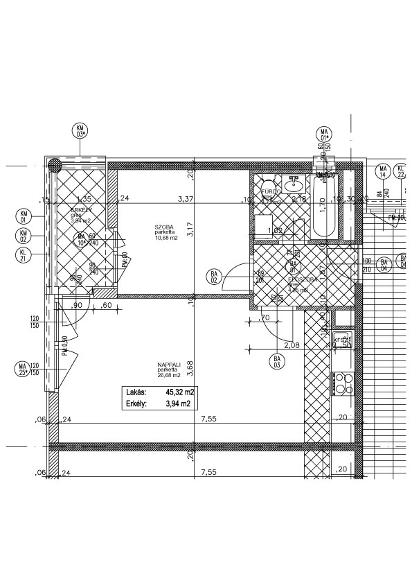
Lakás Adatai
Meretezett tervrajz

Lakáskód:
01-15, 02-40, 03-65

Helyiség: Terület

Nappali+konyha: 26,68 m2
Előtér: 4,25 m2
Szoba: 10,68 m2
Fürdő: 3,71 m2

LAKÁS: 45,32 m2
ERKÉLY: 3,94 m2

(A a rajzokat a képekre kattintva
nagyobb méretben is megtekintheti!)

[Kattintson rá a nagyításhoz!]
Szintrajz Grafikus Tervrajz
[Kattintson rá a nagyításhoz!] [Kattintson rá a nagyításhoz!]


[Első] [Előző] [Vissza a Lakástípusokhoz] [Következő] [Utolsó]