Lakástípusok


[Első] [Előző] [Vissza a Lakástípusokhoz] [Következő] [Utolsó]


Lakás Adatai
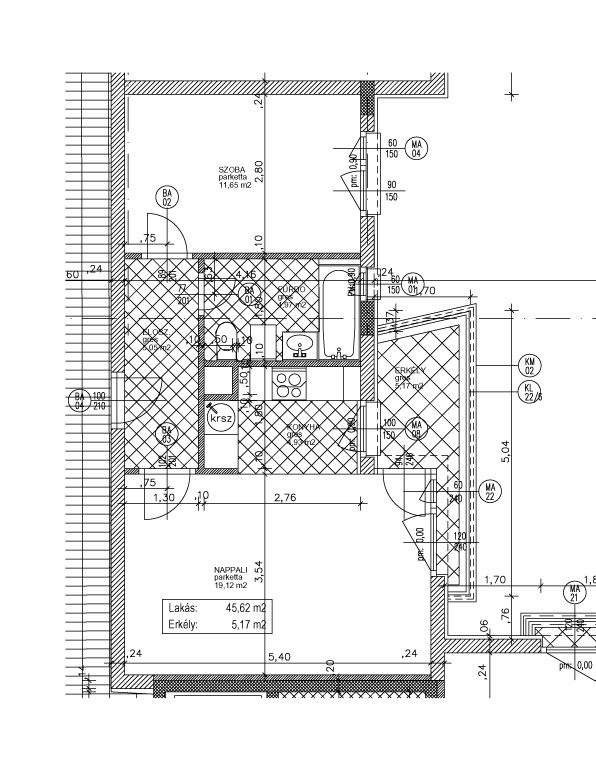
Meretezett tervrajz

Lakáskód:
01-09, 02-34, 03-59,
04-84, 05-109, 06-13

Helyiség: Terület

Nappali: 19,12 m2
Előtér: 5,05 m2
Szoba: 11.65 m2
Konyha: 4,83 m2
Fürdő: 4,97 m2

LAKÁS: 45,62 m2
ERKÉLY: 5,17 m2

(A a rajzokat a képekre kattintva
nagyobb méretben is megtekintheti!)

[Kattintson rá a nagyításhoz!]
Szintrajz Grafikus Tervrajz
[Kattintson rá a nagyításhoz!] [Kattintson rá a nagyításhoz!]


[Első] [Előző] [Vissza a Lakástípusokhoz] [Következő] [Utolsó]